PRODUCTS
CONTACT US
太阳能路灯-庭院景观灯-柱头灯-草坪灯厂家-中山平博pinnacle体育平台照明有限公司
联系人:吴先生
服务热线:
邮箱:
传真:
地址:中山市小榄镇海威路102号
网址://87562888.com
标准篮球场灯光配置方法及球场照明灯杆参数规范
发布时间:2021-12-24 14:16 人气: 来源:未知
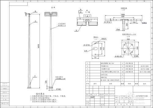
室外篮球场有两种照明配置方式:经济型四杆篮球场照明配置和标准六杆篮球场照明配置。灯具可选自传统卤素灯和高照度的发光二极管节能灯。不同的灯具配置类型也决定了灯杆的安装数量。一般来说,金属卤化物灯具有较高的照度和较宽的照射范围,可以选择4个灯杆进行配置。然而,发光二极管灯具有低照度和相对柔和的光。适合选择6个灯杆进行配置。每个灯杆可以配备2个相应的灯。工具/原材料7米锥形灯杆:上直径60-70毫米,下直径142-165毫米,壁厚3.0毫米,灯杆采用整体热镀锌工艺,可有效延长灯杆使用寿命20-30年。金属卤化物灯:金属卤化物灯使用250瓦-400瓦的功率,正常使用寿命为(小时)。LED投光灯:通常选用集成100瓦-250瓦泛光灯型发光二极管灯,使用寿命在(小时)之间。灯杆预埋件是灯杆预埋安装的必要附件之一。灯杆预埋安装具有安全、牢固、抗风性能好、维修方便的优点。灯支架可以根据安装的灯的数量来确定,并且通常通过内部或外部连接来设计。



1.首先根据前述的篮球场灯杆布线图确定好需要装灯杆的位置,挖坑放置灯杆预埋件和穿线PVC管,混凝土回填,凝固3-5天;

2.拆开灯杆包装,将电线穿进灯杆并连接灯头支架

3.将灯具安装在灯头支架上,连接电线,调节投光角度

4.接通电源进行调试,确定灯具正常发光,各项性能稳定

5.立灯杆,可用吊机或人工将灯杆吊起到预埋件安装位置固定

6.将灯杆法兰盘套进预埋件螺钉所在位置,调节好灯杆水平和角度,通过垫片和螺母进行锁定、7将地线同灯杆线进行连接,球场整体灯光调试,安装完毕END

注意事项:
1、预埋件安装时,螺钉要露出地表5-8公分,太低灯杆底盘不容易锁定,太高则增加安装难度;
2、灯杆立起前一定要进行灯光调试,发现灯光不亮及时检修电路或更换灯具。



服务热线: 吴先生
地址:中山市小榄镇海威路102号